Kreisverwaltung

Regelgeschoss
Copyrights: DREWES + SPETH / KSK Ingenieure

Auflager Geschosspodest auf Türsturz Typ B
Copyrights: DREWES + SPETH / KSK Ingenieure

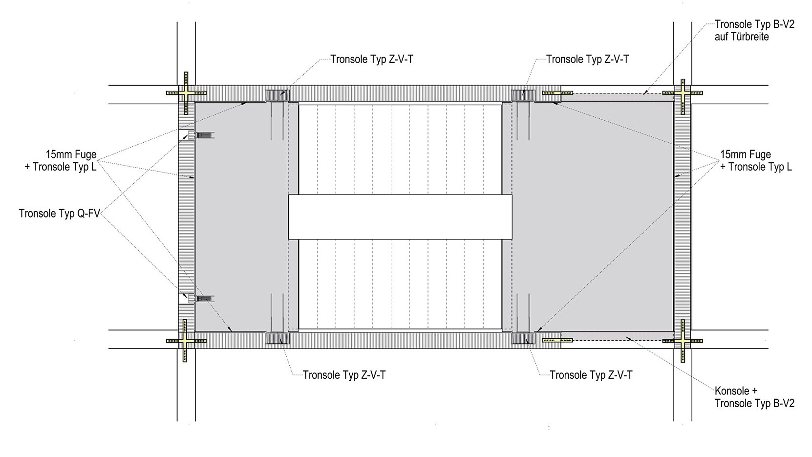
Auflager Podestplatten auf Massivholzwände Typ Q
Copyrights: DREWES + SPETH / KSK Ingenieure

Auflager Podestplatten auf Massivholzwände Typ Z
Copyrights: DREWES + SPETH / KSK Ingenieure

Im Innenhof des denkmalgeschützten Haupthauses der Bezirksverwaltung Ostholstein realisiert die Kreisverwaltung Eutin als Bauherr nach dem Entwurf von Bieling Architekten, Hamburg, einen dreigeschossigen Erweiterungsbau.
Foto: Schöck Bauteile GmbH / Arne Mayntz

Das Bürokonzept der Kreisverwaltung Eutin vereint über drei Geschosse 44 Einzel- und sechs Doppelbüros sowie eine Multifunktionszone mit sieben geschlossenen Besprechungsräumen für einen ungestörten Austausch. Die kompakte und durchdachte Form des Neubaus erlaubt im Bedarfsfall eine nachträgliche winkelförmige Erweiterung.
Foto: Schöck Bauteile GmbH / Arne Mayntz

Um die Anforderungen von 53 dB an den Trittschallschutz der Treppen einzuhalten, wurden zur Entkopplung des Flucht-Treppenhauses verschiedene Typen von Schöck Tronsole eingesetzt. Hier im Bild: Tronsole Typ Z zur akustischen Entkopplung des Hauptpodestes.
Foto: KSK Ingenieure / Marco Sendler

Der Einsatz des Trittschalldämmelements Schöck Tronsole im Holzhybridbau ist ein Novum.
Foto: KSK Ingenieure / Marco Sendler

Das Fluchttreppenhaus im Rohbaustadium, als die Trockenbau-Wände noch nicht erstellt waren. In diesem Bauabschnitt erfolgte die erste Trittschallmessung.
Foto: DREWES + Speth / Martin Speth

Da es in Deutschland bislang jedoch wenig Erfahrung und messbare Daten zum Schallschutz im Holzbau bzw. im Holzhybridbau gibt, hat Schöck den Einsatz von Tronsole zur Trittschalldämmung wissenschaftlich begleiten und prüfen lassen.
Foto: Schöck Bauteile GmbH

Da die erste Messung zu einem frühen Stadium im Rohbau, als die Trockenbau-Wände noch nicht erstellt waren, durchgeführt wurde, erfolgte sie über Körperschallaufnehmer anstatt über eine direkte Luftschallmessung mittels Mikrofon.
Foto: Schöck Bauteile GmbH

Das Fluchttreppenhaus nach Fertigstellung: Das Zusammenspiel aus klassisch grauem Sichtbeton, Holzhandläufen sowie filigranen weißen Brüstungsblechen im Treppenauge sorgt für eine hochwertige Anmutung.
Foto: Schöck Bauteile GmbH / Arne Mayntz
Die neue Kreisverwaltung Ostholstein in Eutin überzeugt durch ihr modernes Ambiente und eine zukunftsweisende Holzhybridbauweise. Der dreigeschossige Erweiterungsbau wurde harmonisch in das denkmalgeschützte Ensemble integriert und deckt den Raumbedarf der rund 500 Mitarbeitenden.
Eine besondere Herausforderung stellte das Flucht-Treppenhaus dar: Die Kombination aus Stahlbetontreppen und Massivholzwänden erforderte eine innovative Lösung für den Trittschallschutz. Hier kamen verschiedene Typen von Schöck Tronsole® zum Einsatz – eine Premiere im Holzhybridbau. „Wir standen vor der Frage, ob eine Tronsole® die Entkopplung und damit den Schallschutz sicherstellen kann", erklärt Liam Owen Winckler von DREWES + Speth. Die wissenschaftliche Begleitung durch die STEP GmbH bestätigte: Mit Schöck Tronsole® wurden die geforderten Werte von 53 dB nicht nur erreicht, sondern deutlich unterschritten.
In der rückwärtigen Wand wurden zwei Trittschalldämmelemente vom Typ Q eingebaut. In den seitlichen Wänden kam Tronsole Typ Z zum Einsatz. Beim Hauptpodest wurden an der Vorderseite jeweils zwei Tronsole Typ Z sowie längs auf der Treppenhauswand zwei Tronsole Typ B eingebaut.
Das Projekt zeigt, wie Schöck Tronsole® auch in innovativen Holzhybridkonstruktionen für effektiven Trittschallschutz sorgt und neue Möglichkeiten für nachhaltige Bauweisen mit hohem akustischem Komfort eröffnet. Für die Mitarbeitenden bedeutet dies eine angenehme Arbeitsatmosphäre mit deutlich reduziertem Lärmpegel.
Kreis Ostholstein
Bieling Architekten, 20354 Hamburg
KSK Ingenieure GmbH & Co.KG, Eutin; DREWES + SPETH, PartgmbB, 30161 Hannover
STEP GmbH, 71364 Winnenden