Nachweise und Prüfverfahren

Damit Sie als Planer Ihre Nachweise effizient und zuverlässig erstellen können, ermitteln wir die Kennwerte unserer Produkte immer nach den aktuell anerkannten Prüfverfahren.
Wir haben Ihnen hier die wesentlichen Grundlagen zur Nachweiserstellung beim Trittschall an Treppen, Balkonen und Laubengängen zusammengestellt. Außerdem informieren wir Sie über die zugrundeliegenden Prüfverfahren.
Kaum eine Eigenschaft ist so schnell und zerstörungsfrei auf der Baustelle und auch im bezogenen Gebäude zu prüfen wie der Schallschutz. Deshalb ist bei der Nachweisführung darauf zu achten, dass die Planung nach den neuesten Erkenntnissen erfolgt, damit der zu erwartende Schallschutz auch korrekt prognostiziert wird.
Allgemeines zum Schallschutznachweis nach DIN 4109
Der rechnerische Nachweis der Erfüllung der Anforderungen an den Schallschutz im Hochbau wird nach DIN 4109-2 „Schallschutz im Hochbau - Teil 2: Rechnerische Nachweise der Erfüllung der Anforderungen" geführt.
Hier ist wie bei den Anforderungen die bauaufsichtlich eingeführte Ausgabe zu beachten. Es empfiehlt sich jedoch die aktuellste Ausgabe aus dem Jahr 2018 zu verwenden, da es besonders bei dem Nachweis von Treppen Änderungen gibt, welche die Erfüllung der Anforderungen beeinflussen können.
Die Nachweisführung des Trittschallschutzes nach DIN 4109 erfolgt im Generellen nach DIN EN 12354 „Bauakustik - Berechnung der akustischen Eigenschaften von Gebäuden aus den Bauteileigenschaften - Teil 2: Trittschalldämmung zwischen Räumen.", Ausgabe September 2000. Diese enthält allerdings keine Regelungen und Angaben zum Trittschall massiver Treppen, Laubengänge oder Balkone. Die überarbeitete Version DIN EN ISO 12354-2, Ausgabe November 2017, beschreibt einen detaillierten Nachweis von massiven Treppen, welche jedoch noch nicht in die DIN 4109 Teil 2 vom Januar 2018 übernommen wurde. Interimsweise greift die DIN 4109 auf pauschale Regeln zurück.
Sicherheitskonzept der DIN 4109
Eine weitere Neuerung im Nachweisverfahren nach DIN 4109 Teil 2 (Juli 2016 und Januar 2018) ist das Sicherheitskonzept der DIN 4109. Es basiert auf Unsicherheitsermittlungen und betrifft sowohl die rechnerischen als auch die messtechnischen Nachweise des Schallschutzes.
Das bedeutet für den Planer, dass erst die Prognose erfolgt und dann ein Sicherheitsbeiwert zu- oder abgeschlagen wird. Der Sicherheitsbeiwert berücksichtigt die Unsicherheit bei der Prognose. Er kann vereinfacht bestimmt oder detailliert ermittelt werden. Für bauaufsichtliche Nachweise sind die vereinfachten Werte zu berücksichtigen, wenn nicht andere Regelungen in bauaufsichtlichen Bestimmungen bestehen. Für die Trittschallübertragung wird ein Sicherheitsbeiwert uprog = 3 dB angesetzt.
Somit muss der bewertete Norm-Trittschallpegel L'n,w um 3 dB unter dem zulässigen bewerteten Norm-Trittschallpegel zul. L'n,w liegen. Es gilt:
L'n,w + uprog = L'n,w + 3 dB ≤ zul. L'n,w [dB]
Der Erweiterungsfaktor der Unsicherheit k erlaubt auch eine erweiterte Festlegung:
L'n,w + k ⋅ uprog ≤ zul. L'n,w [dB]
Für den bauaufsichtlichen Nachweis wird k = 1 angesetzt. Für weitere Anwendungsfelder, wie beispielsweise die Planung mit erhöhten Anforderungen an den Trittschallschutz, können für k auch andere Festlegungen getroffen werden, um eine erweiterte Unsicherheit der Prognose an individuelle Begebenheiten anzupassen. Hierfür gibt die DIN 4109 keine konkreten Vorschläge. Somit liegt die Auslegung des Faktors k im Ermessen des Planers.
Für die detailliert ermittelten Sicherheitsbeiwerte bei massiven Treppen liegen aktuell noch keine Werte vor. Somit empfehlen wir, auf den vereinfachten Sicherheitsbeiwert uprog = 3 dB zurückzugreifen, zumal dieser auch für den bauaufsichtlichen Schallschutznachweis relevant ist.
Schallschutznachweis nach DIN 4109 von Massivtreppen
Der bauaufsichtliche Schallschutznachweis von massiven Treppen wird nach Kapitel 4.3.2.3 der DIN 4109 "Schallschutz im Hochbau - Teil 2: Rechnerische Nachweise der Erfüllung der Anforderungen" geführt. Für die bauaufsichtlichen Mindestanforderungen ist ein pauschaler Nachweis mit Ausführungsbeispielen nach Teil 32 ausreichend. Wenn geringere, also strengere, Norm-Trittschallpegel erreicht werden sollen als die Mindestanforderungen von Treppen in Mehrfamilienhäusern (L'n,w ≤ 53 dB), empfiehlt die DIN 4109, auf Prüfergebnisse zurückzugreifen, die in repräsentativen Versuchsaufbauten messtechnisch bestimmt wurden. „Ein Labor-Prüfverfahren mit verbindlichen Festlegungen für die Prüfung wird in der DIN 7396 beschrieben." (Auszug aus DIN 4109 Teil 32 Absatz 4.9.4)
Pauschaler Nachweis nach DIN 4109 mit Ausführungsbeispielen
Wie im Absatz „Allgemeines zum Schallschutznachweis nach DIN 4109" beschrieben, basiert die Nachweisführung der DIN 4109 Teil 2 auf den Regelungen und Annahmen der DIN EN 12354-2 (2002). Diese enthält keine Nachweisführung von Massivtreppen, daher kann die DIN 4109 nicht auf diese zurückgreifen. Die DIN 4109 Teil 32 gibt interimsweise für den Schallschutznachweis Beispiele für Treppenausführungen an, mit denen ein Norm-Trittschallpegel von L'n,w ≤ 50 dB erreicht wird.
In dem Beiblatt 1 zur DIN 4109 in der Ausgabe von 1989 wurden diese Beispiele der Treppenausführung mit L'n,w ≤ 43 dB angegeben. „Aktuelle Erfahrungen zeigen, dass entgegen den Angaben in DIN 4109 Beiblatt 1:1989-11 Werte L'n,w ≤ 40 dB mit den Treppenausführungen in den Bildern 6 bis 10 nicht sicher erreicht werden können." (Auszug aus DIN 4109 Teil 32 Absatz 4.9.4)
Hinweis:
Für den Nachweis der Prognose von L'n,w ≤ 40 dB ist der Sicherheitsbeiwert von 3 dB zu addieren, sodass dies die frühere Angabe von L'n,w ≤ 43 dB ergeben würde.
Nachweis:
L'n,w + uprog = 50 dB + 3 dB ≤ 53 dB (zul. L'n,w)
Damit werden die bauaufsichtlichen Mindestanforderungen nach DIN 4109 erreicht. Allerdings ist hier nur ein Unsicherheitsfaktor der Prognose uprog berücksichtigt. Mögliche auch nur geringe Ausführungsfehler, die eine leichte Schallbrücke bilden, sind hier nicht abgedeckt.
Pauschaler Nachweis nach DIN 4109 mit Kennwerten nach DIN 7396
Für den Nachweis der erhöhten Anforderungen ist der pauschale Nachweis mit Ausführungsbeispielen nicht mehr ausreichend. Im üblichen Wohnungsbau wird daher in der DIN 4109 Teil 2 der pauschale Nachweis mit Kennwerten aus dem Prüfverfahren der DIN 7396 empfohlen. Die messtechnische Prüfung erfolgt mit bauüblichen Treppengeometrien und realistischen Auflasten. Im Prüfbericht sind die zu erwartenden Norm-Trittschallpegel im Empfangsraum anzugeben.
Wie der Nachweis von Trittschalldämmelementen mit den Kennwerten nach DIN 7396 zu führen ist, wird in der DIN 4109 Teil 2 nicht erläutert. Aus diesem Grund beschreibt Dr. Jochen Scheck, HFT Stuttgart, die Nachweisführung im Bauphysik-Kalender 2020. Der Nachweis von Trittschalldämmelementen orientiert sich an der Nachweisführung nach DIN 4109-2 von massiven Treppen an massiven ein- und zweischaligen Treppenwänden. Dabei wird in Kapitel 4.3.2.3 zwischen Treppen (Podest oder Lauf) ohne und mit zusätzlichem trittschalldämmendem Belag oder schwimmendem Estrich unterschieden. Jahrelange Forschungen und Untersuchungen haben ergeben, dass Trittschalldämmelemente für massive Treppen wie schwimmende Estriche betrachtet werden können. Aus diesem Grund kann auch der Nachweis analog geführt werden.
Treppe (Podest oder Lauf) mit schwimmendem Estrich nach DIN 4109-2 4.3.2.3.:
L'n,w = Ln,eq,0,w - ∆Lw
L'n,w: bewerteter Norm-Trittschallpegel bei nicht übereinander liegenden Räumen, in Dezibel
Ln,eq,0,w: äquivalent bewerteter Norm-Trittschallpegel der Rohdecke, in Dezibel
∆Lw: bewertete Trittschallminderung eines schwimmenden Estrichs, in Dezibel
Treppe (Podest oder Lauf) akustisch entkoppelt durch ein Trittschalldämmelement:
L'n,w = Ln,eq,0,w - ∆w,DIN7396
L'n,w: bewerteter Norm-Trittschallpegel des Podestes bzw. des Laufes, in Dezibel
Ln,eq,0,w: äquivalent bewerteter Norm-Trittschallpegel der Rohdecke, in Dezibel
∆w,DIN7396: bewertete Trittschallpegeldifferenz nach DIN 7396, in Dezibel
Die bewertete Trittschallpegeldifferenz nach DIN 7396 ergibt sich aus der Prüfung nach DIN 7396. Die Bezeichnung in der Norm weicht dabei leicht ab und ist für Podeste und Läufe zu unterscheiden. Die Verbesserung durch Trittschalldämmelemente für Podeste wird durch die bewertete Podest-Trittschallpegeldifferenz ∆w,Podest beschrieben. Für Läufe gilt analog die bewertete Lauf-Trittschallpegeldifferenz ∆w,Lauf.
Für den Nachweis gilt:
∆w,DIN7396 = ∆w,Podest
∆w,DIN7396 = ∆w,Lauf
∆w,Podest: bewertete Podest-Trittschallpegeldifferenz nach DIN 7396, in Dezibel
∆w,Lauf: bewertete Lauf-Trittschallpegeldifferenz nach DIN 7396, in Dezibel
Der äquivalent bewertete Norm-Trittschallpegel Ln,eq,0,w ergibt sich aus DIN 4109-32: Daten für den rechnerischen Nachweis des Schallschutzes (Bauteilkatalog) – Massivbau Tabelle 6. Diese unterscheidet verschiedene Ausführungen von massiven Podesten und Läufen unter Berücksichtigung der Ausbildung der Treppenraumwand.
Mehrfamilienhäuser – einschalige, biegesteife Treppenraumwand
Für den Nachweis von akustisch entkoppelten Podesten in Mehrfamilienhäusern wird Tabelle 6, Zeile 1 verwendet.
Ln,eq,0,w = 63 dB
Für den Nachweis von akustisch entkoppelten Läufen in Mehrfamilienhäusern wird Tabelle 6, Zeile 3 verwendet.
Ln,eq,0,w = 60 dB
Anschließend ist das Sicherheitskonzept der DIN 4109 anzuwenden. Dafür wird auf den bewerteten Norm-Trittschallpegel des Podestes bzw. des Laufes L'n,w der Sicherheitsbeiwert von uprog = 3 dB aufgeschlagen und diese Summe mit dem Anforderungswert verglichen.
L'n,w + 3 dB ≤ zul. L'n,w [dB]
Pauschaler Nachweis nach DIN 4109 bei Reihen- und Doppelhäusern
Bei der Trittschallübertragung von Treppen in Doppel- und Reihenhäusern ist die Übertragung in fremde Aufenthaltsräume relevant, also die Übertragung des Trittschalls in die benachbarte Haushälfte. In der DIN 4109 werden für diese Übertragungswege konkrete Werte für den bewerteten Norm-Trittschallpegel angegeben. Diese Werte gelten für Treppenläufe und Treppenpodeste aus Stahlbeton mit einer Mindestdicke von 120 mm.
Pauschaler Nachweis ohne Entkopplung
Für den Nachweis von Treppen in Doppel- und Reihenhäusern ohne Entkopplung kann der bewertete Norm-Trittschallpegel L'n,w aus Tabelle 6 der DIN 4109 Teil 32 verwendet werden. Diese Werte gelten nur, wenn die Gebäudetrennfuge nach Kapitel 4.3.3.2 der DIN 4109-32 ausgebildet ist. Somit muss die Gebäudetrennfuge durchgehend sein.
In Kapitel 4.3.3.3 weist die DIN 4109 Teil 32 darauf hin, dass bei schutzbedürftigen Räumen, die unmittelbar über der Bodenplatte liegen, die erreichbare Schalldämmung stark von der Art der konstruktiven Trennung der Wandschalen im Bereich des Fundaments und der Bodenplatte abhängt. Das ist beispielsweise häufig bei nicht unterkellerten Gebäuden der Fall.
Der bewertete Norm-Trittschallpegel für ein Treppenpodest, fest verbunden mit Treppenraumwand bei durchgehender Gebäudetrennfuge, nach Tabelle 6 der DIN 4109-32, liegt bei
L'n,w ≤ 47 dB
Der bewertete Norm-Trittschallpegel für einen Treppenlauf, abgesetzt von Treppenraumwand, und durchgehender Gebäudetrennfuge nach Tabelle 6 der DIN 4109-32, liegt bei
L'n,w ≤ 40 dB
Daraus folgt der Nachweis für den Treppenlauf inkl. Sicherheitsbeiwert:
L'n,w + uprog = 40 dB + 3 dB = 43 dB ≤ 46 dB
Damit hält der von der Wand abgesetzte Treppenlauf die bauaufsichtlichen Mindestanforderungen ein, jedoch nicht die erhöhten Anforderungen (Entwurf DIN 4109-5). Das Treppenpodest, das starr angebunden ist, erfüllt keine Anforderung.
Aus diesem Grund sind Treppenpodeste akustisch zu entkoppeln, um sowohl die Mindestanforderungen als auch die erhöhten Anforderungen einzuhalten. Es wird eine akustische Entkopplung der abgesetzten Treppenläufe in Doppel- und Reihenhäusern empfohlen, um den Schallschutz und damit auch die erhöhten Anforderungen sicher einzuhalten. Dies ist vor allem bei gewendelten Treppenläufen relevant, die direkt an die Trennwand angeschlossen werden.
Wenn Anforderungen der Schallschutzstufe II nach VDI 4100 oder besser erreicht werden sollen, ist die akustische Entkopplung der Treppe notwendig.
Pauschaler Nachweis mit Entkopplung durch Trittschalldämmelemente
Für den Nachweis von akustisch entkoppelten Podesten in Doppel- und Reihenhäusern mit durchgehender Gebäudetrennfuge nach DIN 4109-32 Absatz 4.3.3.2. wird Tabelle 6, Zeile 4 verwendet.
Ln,eq,0,w ≤ 50 dB
Für den Nachweis von akustisch entkoppelten Läufen in Doppel- und Reihenhäusern mit durchgehender Gebäudetrennfuge nach DIN 4109-32 Absatz 4.3.3.2. wird Tabelle 6, Zeile 5 verwendet.
Ln,eq,0,w ≤ 43 dB
Anschließend ist das Sicherheitskonzept der DIN 4109 anzuwenden. Dafür wird auf den bewerteten Norm-Trittschallpegel des Podestes bzw. des Laufes L'n,w der Sicherheitsbeiwert von uprog = 3 dB aufgeschlagen und diese Summe mit dem Anforderungswert verglichen.
L'n,w + 3 dB ≤ zul. L'n,w [dB]
Kennwerte der Schöck Tronsole®
Die akustischen Werte der Tronsole® sind unter maximal zulässiger Eigenlast des angeschlossenen Treppenbauteils gemäß DIN 7396 geprüft und stellen somit Werte auf der sicheren Seite dar. Zudem wurden alle geprüften Typen in Kombination mit der Fugenplatte Schöck Tronsole® Typ L gemessen. Werden systemfremde Fugenmaterialien mit dem Trittschalldämmelement Schöck Tronsole® kombiniert, ergeben sich im Allgemeinen, aufgrund der gegebenenfalls höheren Trittschallübertragung über das flankierende Fugenmaterial, schlechtere Trittschalldämmwerte. Die angegebenen Kennwerte sind in diesen Fällen nicht mehr sichergestellt. Die Ausbildung einer Luftfuge ist möglich, wenn sie größer als 5 cm ist, sodass sich weder durch Schmutz noch durch Putz Schallbrücken bilden können.
In der DIN 7396 ist der Prüfaufbau nur mit einer Laufbreite von 1000 mm beschrieben. In der Praxis sind jedoch auch breitere Treppen üblich. Aus diesem Grund wurden zusätzlich zu den Elementbreiten von 1000 mm auch Breiten bis 1500 mm geprüft. Mit den geprüften Kennwerten der Schöck Tronsole® nach DIN 7396 sind Sie immer auf der sicheren Seite: sowohl beim rechnerischen Schallschutznachweis als auch bei Schallmessungen auf der Baustelle.
Die Kennwerte der Schöck Tronsole® sind für den schlechtesten Fall angegeben. Aus diesem Grund können die geprüften Kennwerte in den Prüfberichten besser sein als die in der folgenden Tabelle dargestellten Kennwerte.
1) Kennwerte für Elementbreiten > 1000 mm wurden in Anlehnung an DIN 7396 geprüft.
2) Typ T-V7: Kennwerte sind von der Schöck Tronsole® Typ T-V8 übernommen.
3) Typ Z: Kennwerte sind von der Schöck Tronsole® Typ Z-VH+VH übernommen.
Hinweis:
L'n,w ermittelt nach DIN 4109‑2 für massive Treppen im Mehrfamilienhaus kann direkt für den Nachweis der Anforderungen verwendet werden. Die Unsicherheit der Prognose wurde mit 3 dB bereits in der Berechnung berücksichtigt.
Beispielberechnung für die Schöck Tronsole®
Beispiele für den Schallschutznachweis nach DIN 4109 Teil 2 für verschiedene Schöck Tronsole® Typen im Mehrfamilienhaus:
Mehrfamilienhäuser – einschalige, biegesteife Treppenraumwand
Tronsole® Typ F-V1 und B-V1:
Treppenlauf an einer einschaligen, biegesteifen Treppenraumwand nach DIN 4109-32:
Ln,eq,0,w ≤ 60 dB
Bewertete Lauf-Trittschallpegeldifferenz der Tronsole® Typ F-V1 und B-V1 nach DIN 7396:
∆w,Lauf = 28 dB
L'n,w = 60 dB - 28 dB = 32 dB
L'n,w + uprog = 32 dB + 3 dB = 35 dB ≤ 38 dB
Erhöhte Anforderungen nach Beiblatt 2 DIN 4109 (L'n,w ≤ 46 dB), Schallschutzstufe SSt III (L'n,w ≤ 39 dB) nach VDI 4100 und DEGA Klasse A (L'n,w ≤ 38 dB) eingehalten.
Tronsole® Typ T-V4:
Treppenlauf an einer einschaligen, biegesteifen Treppenraumwand nach DIN 4109-32:
Ln,eq,0,w ≤ 60 dB
Bewertete Lauf-Trittschallpegeldifferenz der Tronsole® Typ T-V4 nach DIN 7396:
∆w,Lauf = 27 dB
L'n,w = 60 dB - 27 dB = 33 dB
L'n,w + uprog = 33 dB + 3 dB = 36 dB ≤ 38 dB
Erhöhte Anforderungen nach Beiblatt 2 DIN 4109 (L'n,w ≤ 46 dB), Schallschutzstufe SSt III (L'n,w ≤ 39 dB) nach VDI 4100 und DEGA Klasse A (L'n,w ≤ 38 dB) eingehalten.
Tronsole® Typ Q:
Die Tronsole Typ Q wird nach DIN 7396 im Referenzpodest geprüft. Außerdem stellt diese im gewendelten Treppenlauf die akustische Trennung zur Treppenhauswand dar. Aus diesen Gründen wird diese in der Nachweisführung für ein Treppenpodest berechnet.
Treppenpodest an einer einschaligen, biegesteifen Treppenraumwand nach DIN 4109-32:
Ln,eq,0,w ≤ 63 dB
Bewertete Podest-Trittschallpegeldifferenz der Tronsole® Typ Q nach DIN 7396:
∆w,Podest = 28 dB
L'n,w = 63 dB - 28 dB = 35 dB
L'n,w + uprog = 35 dB + 3 dB = 38 dB ≤ 38 dB
Erhöhte Anforderungen nach Beiblatt 2 DIN 4109 (L'n,w ≤ 46 dB), Schallschutzstufe SSt III (L'n,w ≤ 39 dB) nach VDI 4100 und DEGA Klasse A (L'n,w ≤ 38 dB) eingehalten.
Tronsole® Typ Z (Z-V, Z-V+V, Z-VH+VH):
Treppenpodest an einer einschaligen, biegesteifen Treppenraumwand nach DIN 4109-32:
Ln,eq,0,w ≤ 63 dB
Bewertete Podest-Trittschallpegeldifferenz der Tronsole® Typ Z nach DIN 7396:
∆w,Podest = 24 dB
L'n,w = 63 dB - 24 dB = 39 dB
L'n,w + uprog = 39 dB + 3 dB = 42 dB ≤ 43 dB
Erhöhte Anforderungen nach Beiblatt 2 DIN 4109 (L'n,w ≤ 46 dB), Schallschutzstufe SSt II (L'n,w ≤ 46 dB) nach VDI 4100 und DEGA Klasse B (L'n,w ≤ 43 dB) eingehalten.
Diese Nachweisführung nach DIN 4109 ist relativ pauschal und ergibt daher Werte auf der sicheren Seite. Die Nachweisführung nach DIN EN ISO 12354-2 berücksichtigt die Flankenübertragung der einzelnen Bauteile und ergibt somit in der Prognose genauere Werte. Dies ist besonders bei der Tronsole® Typ Z entscheidend, da diese für ein übliches Mehrfamilienhaus die Schallschutzstufe SSt III nach VDI 4100 erfüllt.
Tronsole® Typ L:
Der Einfluss der Tronsole® Typ L ist bereits in den akustischen Kennwerten enthalten. Es ist kein separater Nachweis erforderlich.
Hinweis:
Die Bewertung der Schallschutzstufen nach VDI 4100 (SSt II und SSt III) erfolgt hier nach den Anforderungen der Ausgabe von August 2007 (Tabelle 10).
In der VDI 4100:2012-10 wird als Anforderungswert der Standard-Trittschallpegel L'nT,w zu Grunde gelegt. Da hier zusätzlich das Volumen des schutzbedürftigen Raums VE berücksichtigt wird, ist er stärker von der jeweiligen Situation vor Ort abhängig. Er berechnet sich wie folgt:
L'nT,w = L'n,w - 10 ⋅ lg(VE) + 15 dB
Eine gute Möglichkeit der Nachweisführung bietet die DIN EN ISO 12354-2 "Bauakustik - Berechnung der akustischen Eigenschaften von Gebäuden aus den Bauteileigenschaften - Teil 2: Trittschalldämmung zwischen Räumen". Sie ist die Grundlage für die Nachweisführung nach DIN 4109 und berücksichtigt die Schallübertragung der flankierenden Bauteile in den schutzbedürftigen Raum.
Allgemeines zum Schallschutznachweis nach DIN EN ISO 12354-2
Dieser Schallschutznachweis sieht eine Betrachtung der einzelnen Übertragungswege über das trennende Bauteil sowie über die flankierenden Bauteile vor. Es kann zwischen der detaillierten und vereinfachten Nachweisführung gewählt werden. Bei der detaillierten Nachweisführung wird die Berechnung terzweise durchgeführt und erst das Endergebnis bewertet. Beim vereinfachten Verfahren wird mit den Einzahlwerten gerechnet. Somit sind die Eingangsdaten bereits bewertet und können bei der Berechnung als Kennwert genutzt werden.
Das detaillierte Nachweisverfahren ist rechnerisch noch etwas genauer, hat allerdings den Nachteil, dass die Eingangsdaten häufig nicht vorliegen und die Berechnung sehr aufwändig ist. Das vereinfachte Verfahren bietet die Alternative. Hier gibt es für viele Bauteile Eingangsgrößen, die Berechnung ist erheblich vereinfacht und dennoch ist die Berechnung deutlich genauer als der aktuelle Nachweis nach DIN 4109-2 bzw. DIN 4109-32. Das vereinfachte Verfahren nach DIN EN ISO 12354-2 bietet sich an, wenn für Treppen der Nachweis der Schallschutzstufe III bzw. der DEGA-Klasse A geführt werden soll.
Alle weiteren Angaben in diesem Kapitel beziehen sich auf das vereinfachte Modell nach DIN EN ISO 12354-2 (November 2017). Dieses Rechenverfahren prognostiziert den bewerteten Norm-Trittschallpegel L'n,w auf der Grundlage der bewerteten Einzahlwerte nach EN ISO 717-2:2013.
Schallschutznachweis nach DIN EN ISO 12354-2 von Massivtreppen
In der DIN EN ISO 12354-2 vom November 2017 wird im Anhang ein Nachweisverfahren für die Trittschallübertragung von Treppenläufen und Treppenpodesten beschrieben.
Detaillierter Nachweis von Treppenpodesten (vereinfachtes Verfahren)

Bei diesem Schallschutznachweis dient die Trittschallpegelminderung nach DIN 7396 als Eingangsgröße für die Berechnung.
Der bewertete Norm-Trittschallpegel für den direkten Übertragungsweg Ln,d,w ergibt sich durch die folgende Formel. Der Norm-Trittschallpegel der Flankenübertragung Ln,ij,w ist nach dem üblichen Verfahren der DIN EN ISO 12354-2 zu berücksichtigen.
Ln,d,w = Ln,eq,0,w - ΔLw,Podest
Ln,d,w: bewerteter Norm-Trittschallpegel des Treppenpodests im Gebäude infolge von Direktübertragung, in Dezibel
ΔLw,Podest: bewertete Trittschallpegelminderung eines Treppenpodestes nach DIN 7396. Im Entwurf der DIN 7396 hieß diese Größe noch ΔL**w,Podest.

Detaillierter Nachweis von Treppenläufen (vereinfachtes Verfahren)

Für den Schallschutznachweis für Treppenläufe dient die Trittschallpegelminderung nach DIN 7396 als Eingangsgröße für die Berechnung.
Der bewertete Norm-Trittschallpegel für den direkten Übertragungsweg Ln,d,w ergibt sich durch die folgende Formel. Der Norm-Trittschallpegel der Flankenübertragung Ln,ij,w ist nach dem üblichen Verfahren der DIN EN ISO 12354-2 zu berücksichtigen.
Ln,d,w = Ln,eq,0,w - ΔLw,Lauf
Ln,d,w: bewerteter Norm-Trittschallpegel des Treppenlaufs im Gebäude infolge von Direktübertragung, in Dezibel
ΔLw,Lauf: bewertete Trittschallpegelminderung eines Treppenlaufs nach DIN 7396. Im Entwurf der DIN 7396 hieß diese Größe noch ΔL**w,Lauf
Bei diesem Nachweis ist sowohl die Trittschallübertragung zu den benachbarten Räumen zu betrachten als auch die Übertragung in den schräg darunter liegenden Raum.

Kennwerte der Schöck Tronsole®
Die akustischen Werte der Tronsole® sind unter maximal zulässiger Eigenlast des angeschlossenen Treppenbauteils gemäß DIN 7396 geprüft und stellen somit Werte auf der sicheren Seite dar. Zudem wurden alle geprüften Typen in Kombination mit der Fugenplatte Schöck Tronsole® Typ L gemessen. Werden systemfremde Fugenmaterialien mit dem Trittschalldämmelement Schöck Tronsole® kombiniert, ergeben sich im Allgemeinen, aufgrund der gegebenenfalls höheren Trittschallübertragung über das flankierende Fugenmaterial, schlechtere Trittschalldämmwerte. Die angegebenen Kennwerte sind in diesen Fällen nicht mehr sichergestellt. Die Ausbildung einer Luftfuge ist möglich, wenn sie größer als 5 cm ist, sodass sich weder durch Schmutz noch durch Putz Schallbrücken bilden können.
In der DIN 7396 ist der Prüfaufbau nur mit einer Laufbreite von 1000 mm beschrieben. In der Praxis sind jedoch auch breitere Treppen üblich. Aus diesem Grund wurden zusätzlich zu den Elementbreiten von 1000 mm auch Breiten bis 1500 mm geprüft. Mit den geprüften Kennwerten der Schöck Tronsole® nach DIN 7396 sind Sie immer auf der sicheren Seite: sowohl beim rechnerischen Schallschutznachweis als auch bei Schallmessungen auf der Baustelle.
Die Kennwerte der Schöck Tronsole® sind für den schlechtesten Fall angegeben. Aus diesem Grund können die geprüften Kennwerte in den Prüfberichten besser sein als die in der folgenden Tabelle dargestellten Kennwerte.
1) Kennwerte für Elementbreiten > 1000 mm wurden in Anlehnung an DIN 7396 geprüft.
2) Typ T-V7: Kennwerte sind von der Schöck Tronsole® Typ T-V8 übernommen.
3) Typ Z: Kennwerte sind von der Schöck Tronsole® Typ Z-VH+VH übernommen.
Beispiel eines Schallschutznachweises von Treppen in einem Mehrfamilienhaus
Exemplarisch wurden für ein Bauvorhaben mit den folgenden Randbedingungen die Berechnungen für verschiedene Schöck Tronsole® Typen durchgeführt:
Treppenraumwand: 24 cm Kalksandstein, Rohdichteklasse 2.2
Flankierende Wände im Empfangsraum (schutzbedürftiger Raum): 17,5 cm Kalksandstein, Rohdichteklasse 2.0
Für Wände mit geringerer flächenbezogener Masse resultiert ein größerer, also schlechterer, bewerteter Norm-Trittschallpegel L'n,w. Für Wände mit größerer flächenbezogener Masse resultiert ein geringerer, also besserer, bewerteter Norm-Trittschallpegel L'n,w.
Die nach DIN EN ISO 12354-2 berechneten Werte sind geringer, also besser, als die Prüfstandswerte, da im Prüfstand die Treppenraumwand eine geringere flächenbezogene Masse hat als die Treppenhauswand in dem gewählten Beispiel.
1) Kennwerte für Elementbreiten > 1000 mm wurden in Anlehnung an DIN 7396 geprüft.
2) Typ T-V7: Kennwerte sind von der Schöck Tronsole® Typ T-V8 übernommen.
3) Typ Z: Kennwerte sind von der Schöck Tronsole® Typ Z-VH+VH übernommen.
Hinweis:
L'n,w ermittelt nach DIN EN ISO 12354-2 für ein typisches Mehrfamilien-Treppenhaus (Treppenraumwand 24 cm KS-Mauerwerk RDK 2.2, flankierende Wände Empfangsraum 17,5 cm KS-Mauerwerk, RDK 2.0). Die Unsicherheit der Prognose wurde mit 3 dB bereits in der Berechnung berücksichtigt.
Für die Vergleichbarkeit von Produkten und die Prognose der Schallausbreitung im Gebäude ist es wichtig, ein einheitliches und normiertes Prüfverfahren für Trittschalldämmelemente zu definieren. Um die geprüften Kennwerte auch im ausgeführten Zustand zu erreichen, ist ein realistischer und repräsentativer Prüfaufbau entscheidend. Dieser und wie die Prüfung durchzuführen ist, wird für Trittschalldämmelemente an Massivtreppen in der DIN 7396 beschrieben.
Die DIN 7396 beschreibt das Prüfverfahren zur "akustischen Kennzeichnung von Entkopplungselementen für Massivtreppen". Sie ist in Europa die erste Norm, die ein Messverfahren für Trittschalldämmelemente für Treppen definiert und eine Vergleichbarkeit von Produkten ermöglicht. Die Prüfungen erfolgen mit bauüblichen Auflasten und Treppengeometrien. Zudem werden ganze Treppenläufe und Podeste geprüft, sodass die Schallübertragung über die tragenden Elemente aber auch über die Fugen berücksichtigt wird. Damit wird das "System-Treppe" geprüft und ist mit der Einbausituation im Gebäude vergleichbar. In dem System wird auch die Übertragung über die Fugenplatten berücksichtigt. Wird diese bei der Prüfung vergessen, kann das im Gebäude eine hörbare Verschlechterung bewirken.
Im Verfahren nach DIN 7396 werden pro Trittschalldämmelement drei Kennwerte bestimmt:
- Podest- oder Lauf-Trittschallpegeldifferenz ΔL*Podest oder ΔL*Lauf
- Podest- oder Lauf-Trittschallpegelminderung ΔLPodest oder ΔLLauf
- Bewerteter Norm-Trittschallpegel im angrenzenden Empfangsraum Ln,w
Die Trittschalldämmung wird mit verschiedenen Lastfällen bestimmt, da das schalldämmende Elastomerlager unter Last seine akustische Eigenschaft ändert.
Prüfaufbau nach DIN 7396
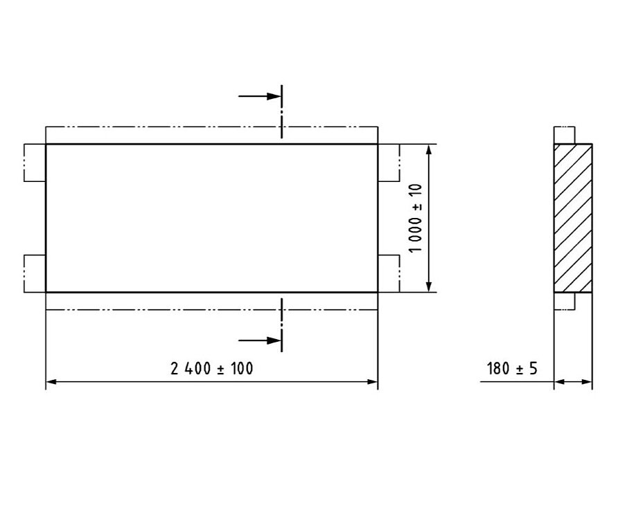
Der Prüfaufbau ist in der DIN 7396 beschrieben. Als Referenzwand zum Empfangsraum dient eine einschalige Wand mit einer flächenbezogenen Masse m' = (450 ± 10) kg/m² inkl. Putz, sie entspricht der Treppenhauswand im Gebäude. Wird die Referenzwand in Stahlbeton ausgeführt, muss die Wand eine Rohdichte ≥ 2000 kg/m³ aufweisen. Für eine Ausführung mit homogenen Mauersteinen müssen die Steine eine Rohdichteklasse ≥ 1,8 haben. Damit wird sichergestellt, dass die geprüften Werte auf der sicheren Seite liegen und auf die Baustelle übertragen werden können.
Das Referenztreppenpodest in Stahlbeton ist auf einer Hilfswand zu lagern, welche statisch ausreichend stabil sein muss und deren Höhe eine horizontale Ausrichtung des Podestes ermöglicht. Der Referenztreppenlauf ist ebenfalls in Stahlbeton herzustellen. Die Anschlussausführung (z. B. Auflagerkonsolen) ist durch die produktspezifischen Anforderungen zu bemessen und daher nicht Teil der DIN 7396.
Podest- oder Lauf-Trittschallpegeldifferenz ΔL*Podest oder ΔL*Lauf
Die Podest- oder Lauf-Trittschallpegeldifferenz ΔL*Podest oder ΔL*Lauf beschreibt die Trittschalldämmwirkung des Elements. Sie ist als bewerteter Einzahlwert eine Produktkenngröße und dient dem akustischen Vergleich von Produkten.
Zur Ermittlung der Kenngröße wird ein Prüfaufbau eines starren Asnchlusses mit dem eines akustisch gelagerten Anschlusses verglichen.
Podest-Trittschallpegeldifferenz ΔL*Podest
Zur Bestimmung der Podest-Trittschallpegeldifferenz ΔL*Podest werden die beiden Norm-Trittschallpegel Ln0,Podest und Ln,Podest terzweise voneinander subtrahiert. Gleiches gilt auch für die Lauf-Trittschallpegeldifferenz ΔL*Lauf.
ΔL*Podest = Ln0,Podest - Ln,Podest
ΔL*Podest : Podest-Trittschallpegeldifferenz, in Dezibel
Ln0,Podest : Norm-Podest-Trittschallpegel des Referenztreppenpodestes bei starrem Einbau, in Dezibel
Ln,Podest : Norm-Podest-Trittschallpegel des Referenztreppenpodestes mit der zu prüfenden Entkopplung, in Dezibel
Lauf-Trittschallpegeldifferenz ΔL*Lauf
ΔL*Lauf = Ln0,Lauf - Ln,Lauf
ΔL*Lauf : Lauf-Trittschallpegeldifferenz, in Dezibel
Ln0,Lauf : Norm-Lauf-Trittschallpegel des Referenztreppenlaufs bei starrem Einbau, in Dezibel
Ln,Lauf : Norm-Lauf-Trittschallpegel des Referenztreppenlaufs mit der zu prüfenden Entkopplung, in Dezibel
Die resultierenden Trittschallpegeldifferenzen werden daraufhin nach DIN EN 717-2 „Akustik – Bewertung der Schalldämmung in Gebäuden und von Bauteilen – Teil 2: Trittschalldämmung“ bestimmt. Diese Produktkenngrößen sind für das Nachweisverfahren nicht geeignet.
Die Abmessungen im Gebäude können von den Abmessungen im Prüfstand abweichen. Des Weiteren entstehen im Gebäude zusätzliche Lasten, wie z. B. durch Belag. Dies kann zu unterschiedlichen Lagerpressungen führen, was wiederum die akustischen Eigenschaften der Trittschalldämmelemente maßgeblich beeinflussen kann. Aus diesem Grund werden bei der Prüfung nach DIN 7396 bauübliche Zusatzlasten mitgeprüft und durch sogenannte Laststufen angegeben. Die Zusatzlasten werden durch eine Hydraulikpresse erzeugt und mit einem Kraftaufnehmer gemessen.
Podest- oder Lauf-Trittschallpegelminderung ΔLPodest oder ΔLLauf für die Nachweisführung nach DIN EN ISO 12354-2
Die Trittschallpegelminderung ist die Schalldämmung, die durch die Bauteile Podest oder Lauf inklusive Trittschalldämmelement unter Berücksichtigung der Stoßstelle Lauf-Podest oder Podest-Wand erreicht wird. Die Trittschallpegelminderung dient als Eingangsgröße für die Nachweisführung nach DIN EN ISO 12354-2.
Podest-Trittschallpegelminderung ΔLPodest
Die Podest-Trittschallpegelminderung ΔLPodest wird nach DIN 7396 bestimmt, indem der Norm-Wand-Trittschallpegel Ln0,Wand der Referenzwand und der Norm-Podest-Trittschallpegel des entkoppelten Referenztreppenpodestes Ln,Podest geprüft wird. Anschließend werden die beiden Größen frequenzabhängig voneinander subtrahiert.
ΔLPodest = Ln0,Wand- Ln,Podest
ΔLPodest : Podest-Trittschallpegelminderung, in Dezibel
Ln0,Wand : Norm-Wand-Trittschallpegel der Referenzwand, in Dezibel
Ln,Podest : Norm-Podest-Trittschallpegel des entkoppelten Referenztreppenpodestes, in Dezibel
Lauf-Trittschallpegelminderung ΔLLauf:
Die Lauf-Trittschallpegelminderung ΔLLauf wird nach DIN 7396 bestimmt, indem einmal der Norm-Podest-Trittschallpegel des starr angeschlossenen Referenzpodestes Ln0,Podest und danach der Norm-Lauf-Trittschallpegel des entkoppelt gelagerten Referenztreppenlaufs Ln,Lauf geprüft wird. Die Werte werden ebenfalls terzweise voneinander subtrahiert.
ΔLLauf = Ln0,Podest - Ln,Lauf
ΔLLauf : Lauf-Trittschallpegelminderung, in Dezibel
Ln0,Podest : Norm-Podest-Trittschallpegel des starr in der Referenzwand einbetonierten Referenztreppenpodestes, in Dezibel
Ln,Lauf : Norm-Lauf-Trittschallpegel des entkoppelten Referenztreppenpodestes, in Dezibel
Die Podest-Trittschallpegelminderung und die Lauf-Trittschallpegelminderung nach DIN 7396 werden für die detaillierte Nachweisführung nach DIN EN ISO 12354-2 verwendet.
Für das vereinfachte Verfahren nach DIN EN ISO 12354-2 werden die bewertete Podest-Trittschallpegelminderung ΔLw,Podest und die bewertete Lauf-Trittschallpegelminderung ΔLw,Lauf benötigt, welche ebenfalls nach DIN EN ISO 717-2 bestimmt werden. Diese Kenngrößen dienen als Eingangsgrößen für die Nachweisführung für das vereinfachte Verfahren nach DIN EN ISO 12354-2.
Bewerteter Norm-Trittschallpegel Ln,w für die pauschale Nachweisführung nach DIN 4109
Für die pauschale Nachweisführung nach DIN 4109 Teil 2 wird der bewertete Norm-Trittschallpegel Ln,w nach DIN 7396 verwendet. Der bewertete Norm-Trittschallpegel Ln,w wird im Empfangsraum des Prüfstandes gemessen. Dieser ergibt sich aus einer bauüblichen und repräsentativen Treppengeometrie nach DIN 7396 und unter bauüblichen Lasten.
Des Weiteren wird das System „Treppe" geprüft, sodass die Übertragung über die Fugen ebenfalls berücksichtigt wird. Daher können die gemessenen Werte nach DIN 7396 auf den Neubau übertragen werden.
Trittschallpegeldifferenz ΔL*n,w als Produktkenngröße
Zur einfachen Vergleichbarkeit von Produkten gibt es eine weitere Produktkenngröße, bei der die Einzahlwerte aus den Messungen nach DIN 7396 voneinander subtrahiert werden können. Dies ermöglicht eine Differenzbildung mit Einzahlwerten und ohne Anwendung des Bezugsdeckenverfahrens.
ΔL*n,w = Ln0,w,Podest - Ln,w,Podest
ΔL*n,w = Ln0,w,Lauf - Ln,w,Lauf
ΔL*n,w: Trittschallpegeldifferenz des Trittschalldämmelements (Produktkenngröße)
Ln0,w,Podest: bewerteter Norm-Trittschallpegel des Referenztreppenpodestes bei starrem Einbau, in Dezibel
Ln,w,Podest: bewerteter Norm-Trittschallpegel des Referenztreppenpodestes mit der zu prüfenden Entkopplung, in Dezibel
Ln0,w,Lauf: bewerteter Norm-Trittschallpegel des Referenztreppenlaufs bei starrem Einbau, in Dezibel
Ln,w,Lauf: bewerteter Norm-Trittschallpegel des Referenztreppenlaufs mit der zu prüfenden Entkopplung, in Dezibel
Die bewerteten Norm-Trittschallpegel werden nach DIN EN ISO 717-2:2013-06 aus den Norm-Trittschallpegeln nach DIN 7396 bestimmt.
Kennwerte der Schöck Tronsole®
Die akustischen Werte der Tronsole® sind unter maximal zulässiger Eigenlast des angeschlossenen Treppenbauteils gemäß DIN 7396 geprüft und stellen somit Werte auf der sicheren Seite dar. Zudem wurden alle geprüften Typen in Kombination mit der Fugenplatte Schöck Tronsole® Typ L gemessen. Werden systemfremde Fugenmaterialien mit dem Trittschalldämmelement Schöck Tronsole® kombiniert, ergeben sich im Allgemeinen, aufgrund der gegebenenfalls höheren Trittschallübertragung über das flankierende Fugenmaterial, schlechtere Trittschalldämmwerte. Die angegebenen Kennwerte sind in diesen Fällen nicht mehr sichergestellt. Die Ausbildung einer Luftfuge ist möglich, wenn sie größer als 5 cm ist, sodass sich weder durch Schmutz noch durch Putz Schallbrücken bilden können.
In der DIN 7396 ist der Prüfaufbau nur mit einer Laufbreite von 1000 mm beschrieben. In der Praxis sind jedoch auch breitere Treppen üblich. Aus diesem Grund wurden zusätzlich zu den Elementbreiten von 1000 mm auch Breiten bis 1500 mm geprüft. Mit den geprüften Kennwerten der Schöck Tronsole® nach DIN 7396 sind Sie immer auf der sicheren Seite: sowohl beim rechnerischen Schallschutznachweis als auch bei Schallmessungen auf der Baustelle.
Die Kennwerte der Schöck Tronsole® sind für den schlechtesten Fall angegeben. Aus diesem Grund können die geprüften Kennwerte in den Prüfberichten besser sein als die in der folgenden Tabelle dargestellten Kennwerte.
Mit:
- L'n,w: Bewerteter Norm-Trittschallpegel im diagonal unter dem Senderaum liegenden Raum
- Ln,ij,w: Bewerteter Norm-Trittschallpegel infolge von Flankenübertragung auf dem Weg ij (von Decke i auf das flankierende Bauteil j)
- n: Anzahl der die Decke i flankierenden Bauteile j
Der bewertete Norm-Trittschallpegel infolge von Flankenübertragung Ln,ij,w wird wie folgt berechnet:
Mit:
- Ln,eq,0,w = 164 dB − 35 lg(m' / 1 kg/m²) dB: Äquivalenter bewerteter Norm-Trittschallpegel der massiven Rohdecke (m' = flächenbezogene Masse der Rohdecke in kg/m²)
- ∆Lw: Bewertete Trittschallminderung der trittschalldämmenden Deckenauflage auf der Rohdecke
- Ri,w : Bewertetes Schalldämmmaß der Decke i
- Rj,w : Bewertetes Schalldämmmaß des die Decke i flankierenden Bauteils j
- ∆Rj,w : Verbesserung des bewerteten Schalldämmmaßes durch eine Vorsatzkonstruktion auf dem flankierenden Bauteil j im Empfangsraum
- Kij : Stoßstellen-Dämmmaß für den Übertragungsweg i nach j
- Si: Fläche der Decke i in m²
- lij: Kopplungslänge zwischen Decke i und flankierendem Bauteil j in m
Übertragung (➝) des Deckenverfahrens nach DIN EN ISO 12354-2:2017 auf die Prognoseberechnung von Balkonen, Loggien und Laubengängen (ohne Berücksichtigung von Vorsatzkonstruktionen):
- Bewerteter Norm-Trittschallpegel infolge von Flankenübertragung: Ln,ij,w auf dem Weg ij von Decke i auf das flankierende Bauteil j (j = 1, ..., n) ➝ Ln,Balkon➝Decke,w (Balkonplatte zur anschließenden Decke), Ln,Balkon➝Wand,w (Balkonplatte zum unterhalb der Balkonplatte anschließenden Außenwandbauteil (massive Wand und/oder Verglasung))
- Ln,eq,0,w➝ Ln,eq,0,w,Balkon: Äquivalenter bewerteter Norm-Trittschallpegel der massiven Balkonplatte (m' = flächenbezogene Masse der Balkonplatte in kg/m²)
- Bewertete Trittschallminderung: ∆Lw (Deckenauflage) ➝ ∆Lw,Element (Balkonanschlusselement)
- Ri,w ➝ Bewertetes Schalldämmmaß der Balkonplatte RBalkon,w
- Rj,w ➝ Bewertetes Schalldämmmaß RDecke,w der Deckenplatte über dem Empfangsraum, bewertetes Schalldämmmaß RWand,w des unterhalb der Balkonplatte anschließenden Außenwandbauteils (massive Wand und/oder Verglasung)
- Si ➝ Fläche SBalkon des Balkons in m²
- Stoßstellen-Dämmmaß Kij für den Übertragungsweg i nach j ➝ KBalkon➝Decke für den Übertragungsweg Balkonplatte zur anschließenden Deckenplatte, KBalkon➝Wand für den Übertragungsweg Balkonplatte zum unterhalb der Balkonplatte anschließenden Außenwandbauteil (massive Wand und/oder Verglasung)
- Kopplungslänge lij zwischen Decke i und flankierendem Bauteil j ➝ gemeinsame Kopplungslänge lBalkon➝Decke zwischen Balkonplatte und anschließender Decke, gemeinsame Kopplungslänge lBalkon➝Wand zwischen Balkonplatte und unterhalb der Balkonplatte anschließendem Außenwandbauteil (massive Wand und/oder Verglasung)
Damit ergibt sich insgesamt (ohne Berücksichtigung von Vorsatzkonstruktionen):
L'n,w = 10 lg (10Ln, Balkon→Decke, w /10 + 10Ln, Balkon-→Wand,w /10)
Mit:
Nachweis der Einhaltung der Anforderungen
Bauaufsichtlich ist im Allgemeinen der rechnerische Nachweis der Einhaltung der öffentlich-rechtlichen Trittschallschallanforderungen nach DIN 4109-1:2018 erbracht, wenn der (berechnete) bewerte Norm-Trittschallpegel L'n,w unter Berücksichtigung des Sicherheitsbeiwerts uprog nach DIN 4109-2:2018 den Anforderungswert zul. L'n,w nicht überschreitet:
Die Trittschall-Kennwerte von vielen unterschiedlichen Schöck Isokorb® Typen sind bereits nach dem neuen EAD-01-Verfahren (adopted version) gemessen worden.
Alle nicht gemessenen Schöck Isokorb® Typvarianten sind mit dem von der HfT Stuttgart entwickelten 3D-FE-Verfahren an einem virtuell nachgebauten Prüfkörper in Anlehnung an das EAD-01-Verfahren (adopted version) berechnet worden.
Somit liegen für alle Schöck Isokorb® Typen, mit denen Betonbalkone angeschlossen werden, Trittschall-Kennwerte nach neuer EAD 01 (adopted) vor – entweder direkt am realen Prüfaufbau gemessen oder in Anlehnung an das Prüf-, Mess- und Auswerteverfahren der EAD 01 (adopted) über eine detaillierte 3D-FE-Simulation berechnet.
Die Trittschall-Kennwerte nach neuer EAD 01 (adopted) finden Sie online in den Dokumenten Bauphysikalische Kennwerte der verschiedenen Isokorb® Modellreihen.
Bei einer statischen Balkonbemessung mit der Bemessungssoftware von Schöck werden die Trittschall-Kennwerte der ermittelten Isokorb® Typen auch in der Ergebnisdokumentation der Software angegeben.
Trittschall-Kennwerte bei Kombination von Schöck Isokorb® und Belag
Im Rahmen des vom Bundesministerium für Bildung und Forschung geförderten Forschungsprojekts an der HfT Stuttgart wurde auch untersucht, wie die trittschalldämmende Wirkung eines zusätzlichen Belags (z.B. schwimmender Belag, Stelzlager, Beschichtung etc.) auf der Balkon-, Loggia- oder Laubengangplatte berücksichtigt werden kann.
Ergebnis der Untersuchungen war, dass die kombinierte Trittschalldämmwirkung aus Belag und Balkonanschlusselement dadurch berücksichtigt werden kann, indem die frequenzabhängigen Werte der getrennt ermittelten Trittschallminderungen von Belag ∆LBelag und Balkonanschlusselement∆LElement zuerst frequenzweise addiert werden und dann anschließend der Einzahlwert der bewerteten Trittschallminderung des kombinierten Systems ∆Lges nach dem Bezugsdeckenverfahren der DIN EN ISO 717-2 ermittelt wird:
∆Lges = ∆LElement + ∆LBelag
Mit:
- ∆Lges: (Frequenzabhängige) Trittschallminderung des Gesamtsystems aus Balkonanschlusselement und trittschalldämmendem Belag
- ∆LElement: (Frequenzabhängige) Trittschallminderung des Balkonanschlusselements nach EAD 01 (adopted)
- ∆LBelag: (Frequenzabhängige) Trittschallminderung des trittschalldämmenden Belags (Deckenauflage)
Aus den (frequenzabhängigen) Trittschallminderungswerten des Gesamtsystems ∆Lges wird durch Anwendung des Bezugsdeckenverfahrens der DIN EN ISO 717-2 die bewertete Trittschallminderung ∆Lw,ges des Gesamtsystems aus Balkonanschlusselement und Belag als Einzahlwert berechnet: ∆Lges ➝ Bezugsdeckenverfahren ➝ ∆Lw,ges
Reihenfolge bei der Berechnung
Es ist zu beachten, dass zuerst die (frequenzabhängigen) Trittschallminderungen des Balkonanschlusselements und des Belags addiert werden müssen und danach erst die Einzahlwertbildung erfolgt. Man darf also nicht zuerst die Einzahlwerte ∆Lw,Element und ∆Lw,Belag bilden und dann addieren (∆Lw,ges ≠ ∆Lw,Element + ∆Lw,Belag).
Neues standardisiertes Prüfverfahren nach EAD 01 (adopted)
Obwohl es bauaufsichtliche und privatrechtliche Anforderungen an die Trittschalldämmung von Balkonen und Laubengängen gibt, existierte bislang kein konkreter Prüfstandard, um die Trittschalldämmwirkung wärmedämmender Balkonanschlusselemente mit einem geeigneten Prüf- und Messaufbau zu ermitteln.
Seit Anfang 2022 liegt nun mit der überarbeiteten Version 050001-01-0301 (adopted) des EAD für Balkonanschlusselemente erstmalig ein detailliert beschriebenes Standardprüfverfahren zur Messung der Trittschall-Kennwerte von Balkonanschlusselementen vor. Mit diesem neuen EAD-Prüfverfahren ist es erstmalig möglich, Trittschall-Kennwerte von unterschiedlichen Typen und Herstellern zuverlässig miteinander zu vergleichen. Gleichzeitig dienen die Trittschall-Kennwerte als verlässliche Eingangswerte für die rechnerische Prognose des Trittschallschutzes von Balkonen und Laubengängen in der Planungsphase.
Was ist ein EAD?
Ein EAD – European Assessment Document – ist im europäischen Zulassungsverfahren das Basisdokument für die Erteilung einer ETA – European Technical Approval ("Europäisch Technische Zulassung"). In einem EAD werden alle relevanten Prüfkriterien und Prüfverfahren beschrieben, welche für die Zulassung des betreffenden Produkts erforderlich sind. EADs werden von der EOTA – European Organisation for Technical Assessment – veröffentlicht.
Alle Prüf- und Nachweisverfahren für die sicherheitsrelevanten Produkteigenschaften (wie Standsicherheit und Brandschutz) sind dabei grundsätzlich Bestandteile eines EAD. Prüf- und Nachweisverfahren für nichtsicherheitsrelevante Produkteigenschaften (wie z. B. Wärmedämmung und Schalldämmung) ergänzen im Allgemeinen die sicherheitsrelevanten Prüfverfahren.
Im Zuge der Beantragung einer ETA kann ein Hersteller bestimmte Eigenschaften des Produkts als wesentliche „Leistungsmerkmale" offiziell in der ETA deklarieren. Für diese Leistungsmerkmale ist es dann zwingend erforderlich, dass die Produktkennwerte nach den entsprechenden Prüfverfahren des EAD ermittelt werden.
Als "Europäisch Technische Zulassung" stellt eine ETA in Deutschland die Basis für den bauaufsichtlichen Verwendbarkeitsnachweis dar.
EAD für Balkonanschlusselemente
Für wärmedämmende Balkonanschlusselemente wie Schöck Isokorb® lautet das entsprechende EAD-Dokument „Load bearing thermal insulation elements which form a thermal break between balconies and internal floors". Dieses EAD ist für alle Hersteller die Grundlage für alle "Europäisch Technischen Zulassungen" von Balkonanschlüssen.
Die erste Version dieses EAD wurde unter der Nr. 050001-00-0301 im Oktober 2017 mit der Versionsnummer 00 veröffentlicht ("EAD 00"). In dieser EAD-Version ist bereits ein grob beschriebenes Prüfverfahren zur Messung der Trittschalldämmwirkung von Balkonanschlusselementen enthalten. Nach diesem Verfahren werden die Trittschall-Kennwerte von Balkonanschlusselementen als Trittschallpegeldifferenz der Einzahlwerte n0,w (bewerteter Norm-Trittschallpegel der starr angeschlossenen Balkonplatte) und Ln,w (bewerteter Norm-Trittschallpegel der an das Balkonanschlusselement angeschlossenen Balkonplatte) beschrieben:
∆Ln,w (EAD 00) = n0,w - Ln,w
Die Trittschallpegeldifferenz der Einzahlwerte nach EAD 00 ist nicht konsistent zu den in den nationalen und internationalen Bauakustik-Normen eingeführten akustischen Kennwerten zur Kennzeichnung der Schalldämmwirkung von trittschalldämmenden Bauteilen – wie z. B. die bewertete Trittschall(pegel)minderung ∆Lw von trittschalldämmenden Deckenauflagen (z. B. schwimmende Estriche) nach DIN EN ISO 10140-1, die bewertete Lauf-/Podest-Trittschallpegelminderung ∆Lw,Lauf/Lw,Podest und die bewertete Lauf-/Podest-Trittschallpegeldifferenz ∆w,Lauf/∆w,Podest von Treppenentkopplungselementen nach DIN 7396 –, da die Trittschallpegeldifferenz nach EAD 00 lediglich eine Differenz der Einzahlangaben darstellt. D. h. das in der Bauakustik üblicherweise angewandte Bezugsdeckenverfahren nach DIN EN ISO 717-2 ist bei diesem Kennwert nach EAD 00 nicht berücksichtigt.
Hinzu kommt, dass der Prüf- und Messaufbau, der nach EAD 00 als Grundlage für die Messung der Trittschallpegel dient, akustisch nur unzureichend definiert ist, sodass kein eindeutig definierter Prüfstandard vorliegt.
Neues Prüfverfahren für die Trittschall-Kennwerte nach EAD 01 (adopted)
Die unzureichenden Angaben in dem EAD 00 zum Prüfaufbau und Messprozedere waren u. a. Anlass, im Rahmen eines vom Bundesministerium für Bildung und Forschung geförderten Forschungsprojekts an der Hochschule für Technik in Stuttgart (HfT) die Grundlagen eines bauakustisch geeigneten Prüf- und Messaufbaus zur Messung der trittschalldämmenden Eigenschaften von Balkonanschlusselementen zu entwickeln.
Das Ergebnis dieses Forschungsprojekts ist ein bauakustisch weiterentwickeltes und optimiertes Prüf- und Messverfahren mit einer detaillierten Beschreibung des konkreten Prüf- und Messaufbaus sowie der Weiterbehandlung der Messwerte. Der Produktkennwert zur Kennzeichnung der Trittschalldämmwirkung von Balkonanschlusselementen wird danach völlig analog zur bewerteten Trittschallminderung ∆Lw von Deckenauflagen ermittelt, d. h. es kommt – wie in der Bauakustik üblich – das Bezugsdeckenverfahren nach DIN EN ISO 717-2 zur Anwendung.
Die Ergebnisse des HfT-Forschungsprojekts waren Grundlage für die Überarbeitung des Trittschallprüfverfahrens des EAD 00. Mit der neuen EAD-Version 01, welche seit Anfang 2022 in einer "adopted"-Version vorliegt, ist damit das weiterentwickelte Prüfverfahren der HfT als neuer Standard für die Messung der Trittschall-Kennwerte von Balkonanschlusselementen eingeführt.
Neue Trittschall-Kennwerte nach EAD 01 (adopted) als verlässliche Produktkennwerte
Aufgrund der 1:1-Analogie mit trittschalldämmenden Deckenauflagen und des detailliert festgelegten Prüf- und Messaufbaus können die neuen Trittschall-Kennwerte nach EAD 01 (adopted) nicht nur zum verlässlichen Vergleich der trittschalldämmenden Eigenschaften verschiedener Balkonanschlusselemente verwendet werden, sondern dienen gleichzeitig auch als geeignete Eingangsgrößen für die Prognoseberechnung des Trittschallschutzes von Balkonen und Laubengängen in Analogie zum Deckenverfahren z. B. nach DIN EN ISO 12354-2.
Prüfaufbau nach EAD 01 (adopted)
Der Prüfaufbau gemäß nachfolgender Abbildung besteht aus einer Deckenplatte und zwei Balkonplatten, die über Balkonanschlusselemente an die Deckenplatte bauüblich angeschlossen sind. Bei linienförmig anzuschließenden Elementen erfolgt der Anschluss je Balkonplatte mit lückenlos aneinander gereihten Elementen derselben Typ-Variante. Bei punktuell anzuschließenden Elementen erfolgt der Anschluss je Balkonplatte mit zwei identischen Typ-Varianten bündig an den beiden seitlichen Rändern der Balkonplatte. Der Dämmfugenbereich zwischen den punktuellen Anschlüssen wird mit Dämmstoff der gleichen Dicke wie die des Dämmelementes ausgeführt.
Länge und Breite der Decken- und Balkonplatten sind entsprechend den nachfolgenden Abbildungen auszuführen. Die Höhe H des Prüfaufbaus entspricht der Höhe der zu prüfenden Elemente.
Die Deckenplatte wird auf zwei massiven Hilfswänden elastisch gelagert, sodass der Prüfkörper – bestehend aus Balkonplatten, Anschlusselement und Deckenplatte – von den Hilfswänden akustisch entkoppelt ist. Die dynamische Steifigkeit der elastischen Lagerung ist dazu so zu wählen, dass die Resonanzfrequenz des Prüfkörpers ≤ 30 Hz beträgt (Betrachtung als Einmassenschwinger).
Für die Prüfung von Elementen, welche nur den Anschluss von einseitig gestützten Balkonen erlauben, erfolgt am freien Ende der Balkonplatte eine akustisch entkoppelte (elastische) Auflagerung über zwei für die Lastabtragung geeignete Stützen. Die elastische Lagerung ist wieder so zu wählen, dass die Resonanzfrequenz des gesamten Prüfaufbaus ≤ 30 Hz beträgt (Betrachtung als Einmassenschwinger).
Es ist auch zulässig, an die Deckenplatte nur eine Balkonplatte anzuschließen.
Durchführung der Prüfung und Auswertung
Die Geräteausstattung, Durchführung und Dokumentation der Messungen erfolgen grundsätzlich nach DIN EN ISO 16251-1.
Die Körperschallanregung der Balkonplatte mit dem Norm-Hammerwerk erfolgt an einer äußeren Ecke der Balkonplatte an drei Positionen mit jeweils ca. 5° Abweichung zum seitlichen und vorderen Rand der Balkonplatte sowie diagonal dazu (45° Abweichung).
Die Körperschallanregung der Deckenplatte mit dem Norm-Hammerwerk erfolgt an einer von der Balkonplatte abgewandten hinteren Ecke der Deckenplatte an drei Positionen mit jeweils ca. 5° Abweichung zum seitlichen und hinteren Rand der Deckenplatte sowie diagonal dazu (45°).
Die Positionierungen des Norm-Hammerwerks erfolgen möglichst nah an den Kanten und Ecken der Platten, wobei jedoch keiner der Hämmer einen Abstand von weniger als 10 cm zu den Kanten der Platten haben darf.
Bei Anregung 1) der Deckenplatte und 2) der Balkonplatte wird jeweils der mittlere Schnellepegel auf der Deckenplatte mit Terzbandfilterung im Frequenzbereich von 50 Hz bis 5000 Hz bestimmt. Dazu sind für 1) und 2) dieselben 6 Messpositionen der Körperschallaufnehmer für jede Hammerwerksposition zu verwenden. Die einzelnen Messpositionen müssen einen Abstand ≥ 10 cm von den Plattenrändern, ≥ 50 cm von den Hämmern des Norm-Hammerwerks sowie ≥ 50 cm untereinander haben.
Die Trittschallminderung des Dämmelementes wird wie folgt ermittelt:
∆L = Lv0 - Lv
Mit:


- a: Anzahl Messpositionen auf der Decke (a ≥ 6)
- Lv0,n,m: Schnellepegel an Messposition n auf der Decke für Anregeposition m mit dem Norm-Hammerwerk auf der Deckenplatte
- Lv,n,m: Schnellepegel an Messposition n auf der Decke für Anregeposition m mit dem Norm-Hammerwerk auf der Balkonplatte
- ΔL: (Frequenzabhängige) Trittschallminderung des Balkonanschlusselements
Die Bestimmung der bewerteten Trittschallminderung ΔLw aus den Ergebnissen für ΔL in Terzbändern muss nach DIN EN ISO 717-2 erfolgen.
Prüfverfahren nach EAD 00 und EAD 01 (adopted) im Vergleich
Prüfprinzip nach EAD 01 (adopted):
- Messung anhand eines Prüfkörpers
- Ergebnis der Messung: Trittschallminderung ΔL = Lv0 − Lv
Die gemessene Differenz der Körperschallpegel stellt eine Trittschallminderung dar, da innerhalb desselben Prüfaufbaus die ungedämmte und die gedämmte Situation miteinander verglichen werden. Durch die Messung beider Pegelwerte am selben Prüfaufbau „kürzen" sich etwaige Unterschiede zwischen verschiedenen Prüfaufbauten durch die Differenzbildung heraus, sodass der Einfluss des konkreten Prüfkörpers auf die gemessene Trittschallminderung minimiert ist.
Prüfprinzip nach EAD 00:
- Messung an zwei verschiedenen Prüfkörpern
- Ergebnis der Messung: Bewertete Trittschallpegeldifferenz ΔLn,w = n0,w − Ln,w
Die gemessene Differenz der Körperschallpegel stellt eine Trittschallpegeldifferenz dar, da anhand von zwei verschiedenen Prüfkörpern die ungedämmte und die gedämmte Situation miteinander verglichen werden. Durch dieses Prüfprinzip können sich etwaige Unterschiede zwischen den beiden Prüfkörpern nicht durch eine Differenzbildung „herauskürzen", sodass ein größerer Einfluss aufgrund ggf. vorhandener Unterschiede zwischen den beiden Prüfkörpern (z. B. Betonqualität, Bewehrungsgehalt, Oberflächenbeschaffenheit etc.) auf die gemessene Trittschallpegeldifferenz zu erwarten ist im Vergleich zum Prüfverfahren nach EAD 01 (adopted).
3D-FE-Simulationsverfahren
Die direkte Messung der Trittschall-Kennwerte nach dem Prüfverfahren des EAD 01 (adopted) ist aufwändig, da pro Prüfkörper maximal zwei unterschiedliche Grundtypen von Anschlusselementen geprüft werden können (bei zweiflügligem Prüfkörper mit zwei angeschlossenen Balkonplatten). Durch sukzessives Entfernen der einzelnen Bewehrungskomponenten (Zugstäbe, Querkraftstäbe und Drucklager) in der vom Dämmkörper befreiten Anschlussfuge (der Dämmkörper hat im Allgemeinen keinen relevanten Einfluss auf die Trittschallübertragung) können je Anschluss weitere (geringere) Tragstufen des Grundtyps realisiert werden. Es ist aber dennoch nicht möglich, mit vernünftigem Prüfaufwand sämtliche in der Praxis verwendeten Typvarianten der Balkonanschlusselemente zu prüfen.
Um dennoch auf Grundlage des EAD-01-Prüfverfahrens verlässliche Trittschall-Kennwerte für die nicht direkt geprüften Typvarianten zu ermitteln, ist es mittlerweile möglich, mit einem geeigneten 3D-FE-Modell unter Verwendung einer leistungsfähigen Strukturmechanik-FE-Software Trittschall-Kennwerte mit ausreichender Genauigkeit zu simulieren. Dazu wird der reale EAD-01-Prüfaufbau in einem detaillierten 3D-Modell 1:1 nachgebaut ("virtueller Prüfaufbau"). Insbesondere werden für die Trittschallübertragung maßgebenden Bewehrungskomponenten des Balkonanschlusselementes originalgetreu im FE-Modell abgebildet.
Entwicklung eines 3D-FE-Berechnungsverfahrens durch die HfT Stuttgart
Im Rahmen des vom Bundesministerium für Bildung und Forschung geförderten Forschungsprojekts hat die HfT Stuttgart solch ein geeignetes 3D-FE-Simulationsverfahren entwickelt und anhand von realen Messungen nach dem EAD-01-Verfahren validiert. Es ergab sich eine sehr gute Übereinstimmung zwischen den gemessenen und den FE-simulierten Trittschall-Kennwerten.
Verlässliche Simulation
Damit ist es nun erstmals möglich, nicht gemessene Anschlussvarianten von Balkonanschlusselementen verlässlich mit einem detaillierten 3D-FE-Modell gemäß dem realen Prüfverfahren nach EAD 01 (adopted) zu simulieren.