Lernhaus der Zukunft

Die Anforderungen an den Neubau der Willy-Brandt-Gesamtschule in München waren hoch: modern sollte er sein, räumlich überschaubar, aber groß genug, um zwei Schulen unterzubringen und zugleich genügend Platz bieten, um zeitgemäßes Lernen zu ermöglichen. Ein Bauvorhaben dieser Größe erfordert Betonplatten von großer Spannweite mit einer entsprechenden Dicke. Die hohen Querkräfte zwischen den großen Betonbauteilen nimmt dabei der neue Schwerlastdorn Stacon von Schöck auf. Die statisch und thermisch einwandfreie Befestigung der fast drei Kilometer langen Fluchtbalkone rund um das Gebäude sichert das tragende Wärmedämmelement Isokorb.

In der Freudstraße, westlich des U-Bahnhofs Harthof, errichtet die Landeshauptstadt München als Bauherrin einen Schulkomplex der Superlative: einen modernen Ort zum Lernen für 1.800 Schülerinnen und Schüler sowie 200 Lehrende aus zwei Schulen – die Willy-Brandt-Gesamtschule sowie die Fachoberschule Nord für Sozialwesen, die dort ein neues Domizil finden wird. Auf knapp 20.000 Quadratmetern Nutzfläche entsteht nach dem Entwurf von HASCHER JEHLE Architektur Berlin ein moderner Ort zum Lernen.

Zwischen Form und Funktion

Der neue Schulkomplex besteht aus einem zentralen Gebäudeteil, an den sich drei weitere Bauten anschließen. 66 Klassen- und 22 Fachklassenräume werden in diesem 5-Geschosser untergebracht sein. Der südliche Gebäudeteil sitzt als rechteckiger Turm auf einem 2-geschossigen Gebäudesockel. Dieser wird eine Mensa, die Aula, eine Bibliothek und eine Hausmeisterwohnung aufnehmen. Eine Tiefgarage mit 63 Stellplätzen verbindet das Untergeschoss mit dem angrenzenden Sporttrakt inklusive Schwimm- und Turnhalle. Im Sommer 2024 sollen die Baumaßnahmen abgeschlossen sein.

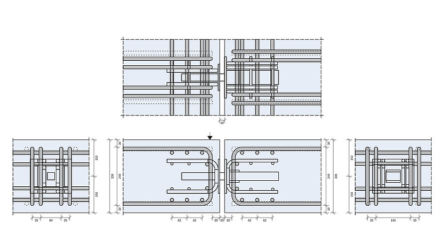
Große Spannweiten, hohe Lasten, starke Kräfte

Das Bauwerk wurde in fünf Bauabschnitte unterteilt, die mittels vier Dehnfugen verbunden wurden. Dehnfugen ermöglichen eine zwängungsfreie Verformung der Betonbauteile, welche durch das Schwinden während des Erhärtens des Betons entstehen. So werden Zwangskräfte und Risse im Bauwerk vermieden. Ein Entwurf dieser Größe erfordert Betonplatten von großer Spannweite. Dadurch entstehen jedoch hohe Lasten, die abgetragen werden müssen. Die Dicke der einzelnen Bodenplatten beträgt bis zu einem Meter – das entspricht etwa der doppelten Plattenstärke, die bei einem herkömmlichen Wohnhaus zum Einsatz kommt.
Die Lösung, um die verschiedenen Abschnitte miteinander zu verbinden und die dort entstehenden Kräfte entsprechend aufzunehmen, ist der Schwerlastdorn Stacon Typ SLD-Q von Schöck. Er verbindet Bodenplatten, Decken, Unterzüge und Wände kraftschlüssig. Insgesamt 580
Stacon Typ SLD-Q in den höchsten Tragstufen 300 und 400 kommen zum Einsatz. Johanna Boltz, Bauleitung beim Bauunternehmer Hönninger bestätigt: „Bei diesem Bauvorhaben handelt es sich um eine konstruktionstechnisch anspruchsvolle Ausführung, da sehr hohe Lasten vorliegen. Daher werden im gesamten Projekt und auf allen Etagen eine große Menge des Stacon verwendet.“

Neuauflage eines Klassikers

Der Bauproduktehersteller aus Baden-Baden hatte das innovative Produkt als Weiterentwicklung seines bereits bestehenden Querkraftdorns erst kurz vor Baubeginn auf den Markt gebracht. Die neue Generation des einbaufertigen Schwerlastdorn Stacon Typ SLD ist kompakter und ermöglicht den Einbau höherer Tragstufen in dünneren Decken und Wänden. Bei einem Eigengewicht von circa 35 Kilogramm kann ein einzelner Dorn 30 Tonnen Lasten übertragen.
Neben dem Stacon Typ SLD werden außerdem 470 Stacon Typ LD verbaut. Ohne zusätzliche Konstruktionen verbindet dieser Querkraftdorn die an der Fuge angrenzenden Bauteile. Dabei werden die Querkräfte übertragen, während gleichzeitig die erforderliche Beweglichkeit gewährleistet wird.
Zusätzliche Sicherheit im Brandfall verschafft die bei fast allen Querkraftdornen eingesetzte Brandschutzmanschette: Dadurch ist eine Fugenkonstruktion in der Feuerwiderstandsklasse R 120 gewährleistet.

Simpel und sauber

Auch die Montage des Schwerlastdorns hat Johanna Boltz überzeugt: „Der Einbau des Stacon ist einfach und sauber zu erledigen. Besonders hilfreich ist der gut verständliche, visuelle Verarbeiterleitfaden von Schöck, der eine sprachunabhängige Benutzung auf der Baustelle ermöglicht.“ Bereits im Vorfeld waren die Einbaumeister von Schöck auf der Baustelle, um die Montage des neuen Stacon Typ SLD zu demonstrieren. Die Produkte von Schöck wurden darüber hinaus „just in time“ nach München geliefert – eine kostenintensive Bauzeitverzögerung konnte so vermieden werden.

Wartungsfreie Alternative

Der Entwurf der neuen Gesamtschule orientiert sich am Münchner Lernhauskonzept, das einen zentralen Gemeinschaftsbereich zwischen den Klassenzimmern vorsieht. Das Architekturbüro HASCHER JEHLE Architektur plante für den gemeinschaftlich genutzten Raum einen Lichthof sowie Glaswände, damit die Lern- und Aufenthaltsbereiche natürlich belichtet werden und Sichtkontakt nach außen und zwischen den Räumen möglich ist.
Durch das Fehlen eines zentralen Flurs waren Fluchtbalkone baurechtlich zwingend notwendig. „Im Vergleich zu einer wartungsaufwendigen Sprinkleranlage, die zusätzlich vor Missbrauch geschützt werden muss, sind Fluchtbalkone als Rettungsweg über die Fassade eine wartungsarme und zugleich effektive Alternative“, erklärt Robert Kahlow, Architekt beim ausführenden Architekturbüro Hascher Jehle Architektur. Die Balkone kragen 1,45 Meter aus und sind von allen Räumen aus erreichbar. Mit einem Geländer als vollwertige Absturzsicherung und einer zusätzlichen aufgeständerten Gitterkonstruktion als Lauffläche, gewährleisten sie einen sicheren Fluchtweg bei jeder Witterung.
Die thermische Trennung und den statischen Anschluss der Balkone sichert Schöck Isokorb, der auf einer Länge von rund drei Kilometern Fluchtbalkonen eingesetzt wird. „Beim Anschluss von auskragenden Bauteilen ist Isokorb bei uns immer erste Wahl. Als tragendes Wärmedämmelement minimiert er Wärmebrücken auf ein Minimum und bietet zugleich optimale Gestaltungsfreiheit“, sagt Robert Kahlow.

Hand in Hand: Pädagogik und Nachhaltigkeit

Die energieeffiziente Bauweise spiegelt das Thema Nachhaltigkeit im Entwurf wider, das sich wie ein „grüner Faden“ durch das Projekt zieht. Dazu zählt auch die erst vor wenigen Jahren sanierte Sporthalle, die als einziges Gebäude des ehemaligen Schulkomplexes erhalten und in den neuen Entwurf integriert wurde. Begrünte Dächer sollen darüber hinaus verschiedenen Tier- und Pflanzenarten einen neuen Lebensraum bieten. Die Menge der eingespeisten Energie einer Photovoltaik-Anlage können Schülerinnen und Schüler über eine Informationstafel beobachten. Zum Schuljahr 2024/2025 soll es losgehen – dann sollen die Schulklassen in das fertige Gebäude einziehen.

 

Bautafel

Bauzeit: Herbst 2021 bis voraussichtlich Sommer 2024
Bauherrin: Landeshauptstadt München, Referat für Bildung und Sport, Baureferat (Projektleitung)
Architekturbüro: HASCHER JEHLE Architektur, Berlin
Bauunternehmer: Dipl.-Ing. Emil Hönninger GmbH & Co.
Bauunternehmung KG, Kirchseeon
Produkte: Stacon Typ SLD-Q und Typ LD, Isokorb Typ XT Typ K

Downloads

Objektbericht PDF
pdf, 9 MB
Objektbericht unformatiert
txt, 10 KB
Bild in Printqualität
zip, 19 MB
Bild in Webqualität
zip, 2 MB